Скачать мобильное приложение Metry.kz
СКАЧАТЬ
Метры


Продается 2-ком, Бизнес класса

город республиканского значения Астана, Астана, ЖК Трайбека
730 303 тг/м2
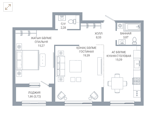
Количество комнат 2
Общая площадь 66 м2
Этаж 4
Этажность 12
Жилой комплекс ЖК Tribeca
Площадь кухни 15 м2
Тип дома монолит
Год постройки дома 2026
Квартал сдачи дома IV
Балкон застеклен
Санузел 2 сан узла
Высота потолков в метрах 3
Паркинг встроенный
Класс жилья Бизнес
Застройщик Bazis
Рассрочка со взносом 30%, 50%, 70%
Ипотека Отбасы Банк

Жилой комплекс Tribeca — современный проект бизнес-класса, расположенный рядом с популярными жилыми кварталами Soho и Noho, продолжающий концепцию комфортной жизни в большом городе. 
      Локация Комплекс находится на улице Керей и Жанибек хандар. Удобные выезды на ключевые магистрали и новый автомобильный мост через реку Есиль позволяют быстро добраться в любой район города. 
      Комфорт квартир • Высота потолков — до 3, 3 м • Панорамные окна до 2, 4 × 2, 4 м с безопасным сложным открыванием • Детские блокирующие замки Baby Safe Lock • Входные двери увеличенного формата — 2, 3 × 1, 0 м ⸻ 
      Безопасность и технологии Комфорт уже включён в базовую комплектацию: • Электронные замки: chip-идентификатор, код, отпечаток пальца и механический ключ • Многоуровневая система безопасности • Видеонаблюдение и доступ по FACE / CHIP ID • Подземный паркинг • Контроль доступа автомобилей и автоматические ворота • Boxroom и колясочные • Современная противопожарная система
       Архитектура и инфраструктура • Современные дома высотой 7, 9 и 12 этажей • Эргономичные планировки • Закрытый двор без машин • Собственное retail-пространство • Две новые комфортные школы Binom в пешей доступности 
       Двор и отдых На территории комплекса предусмотрены пространства для активной и спокойной жизни: • Детские площадки с climbing-сетями, балансирами и игровыми городками • Outdoor-зоны для тренировок и отдыха на свежем воздухе 
       Комиссия для покупателя — 0% По условиям приобретения — напишите, проконсультирую.


 Настоящая реклама, в соответствии со ст. 395 ГК РК, не является публичной офертой. 
Информация о ЖК опубликована с целью определения спроса на указанный продукт.
Договоры о долевом участии в жилищном строительстве будут заключаться только
после заключения договора о предоставлении гарантии с Фондом гарантирования
или выдачи разрешения на привлечение денег дольщиков местным исполнительным органом.

Ваш персональный менеджер

Если у вас появились вопросы, напишите нам!